
Planning Ref: 25/04107/FU
Set on highly sought-after Alwoodley Lane, this south-facing plot offers an exceptional opportunity to create a showpiece residence in one of North Leeds’ most prestigious addresses. With full planning consent already granted, this property provides the ideal canvas for a striking transformation, blending contemporary design with timeless elegance.
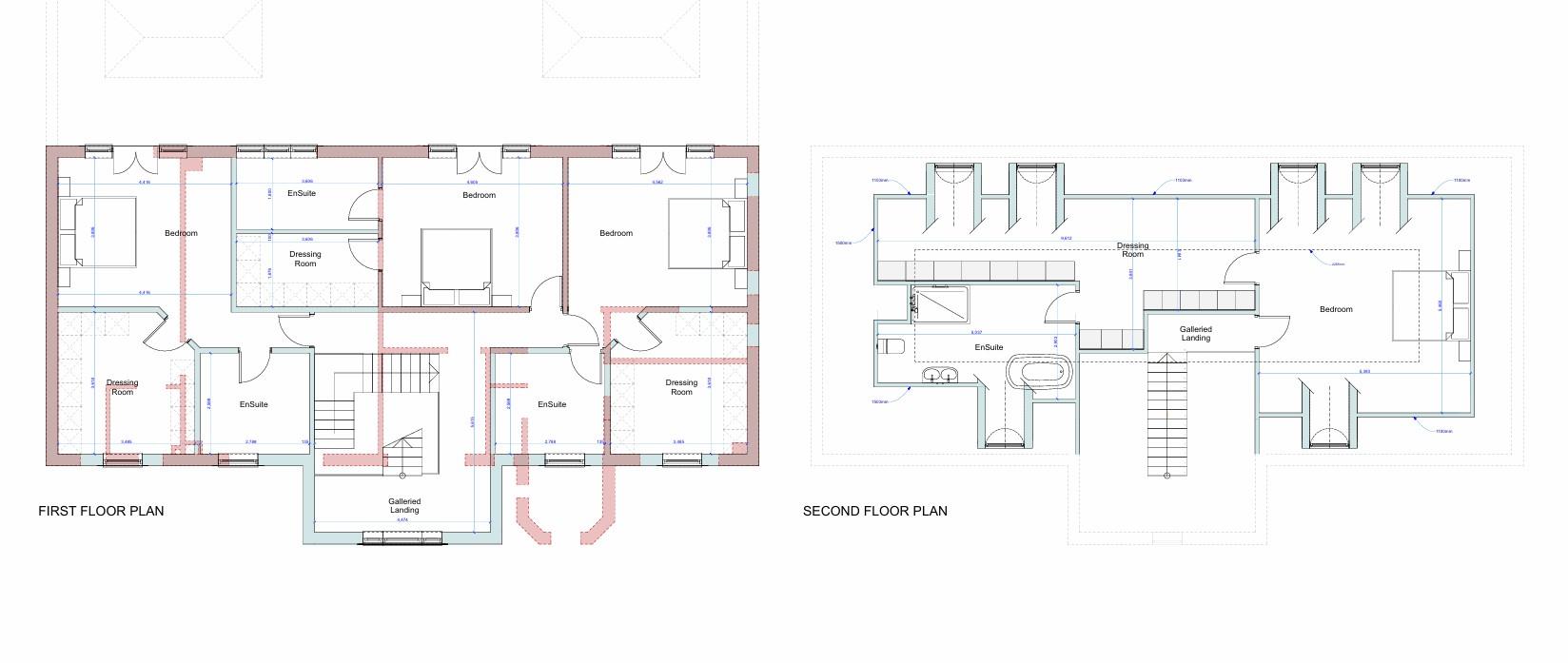
The approved scheme has been thoughtfully designed to maximise both space and natural light. The current footprint offers 3,036sqft however the proposed plans increase this footprint to approximately 5,125sqft. Proposals include a part two-storey, part single-storey front extension, a new pitched roof with dormers to both front and rear, and a substantial rear extension—perfect for expansive family living. Additional features such as the relocated entrance with statement canopy, double garage with integrated utility conversion, and re-rendering and brick cladding with slate re-roofing will elevate the property’s curb appeal and modernise its presence on Alwoodley Lane.
Inside, the plans promise generous, light-filled accommodation, ideal for tailoring to modern lifestyles, while the external upgrades ensure a truly distinguished home, both inside and out.
Whether you’re a homeowner looking to create your forever home in one of Leeds’ premier locations, or a developer seeking a project with strong long-term value, this south-facing site presents a rare chance to deliver something exceptional.
KEY FEATURES
- Full planning consent approved for transformative extension and remodel
- Highly coveted south-facing plot on Alwoodley Lane
- Prestigious setting with excellent amenities and schools nearby
- Substantial scope to create a luxury family home with contemporary design
- Ready-to-go project with no onward chain
This is a turnkey opportunity to bring a truly unique property to life in one of Leeds’ most desirable locations. Enquiries and site visits are welcomed by appointment, with further details and plans available on request.
To find out more, contact Monroe Land and New Homes.
T: 0113 870 4443
E: landandnewhomes@monroeestateagents.com
ENVIRONS
Located on the northern edge of the picturesque Leeds countryside, offering an effortless commute to the thriving commercial centre of Leeds, as well as the popular towns of Harrogate, Wetherby, and the stunning Yorkshire countryside beyond. In the local area, there is the highly esteemed Grammar School at Leeds and several championship golf courses. Rich in amenities, Alwoodley has an array of top-quality coffee shops and restaurants as well as being situated close to several sports facilities including David Lloyd. The ever-expanding Leeds Bradford International Airport is also just a short drive away, as is the national motorway network, making this property the perfect hub for both business and pleasure.
Leeds City Centre, Harrogate, York, and Wetherby are also easily accessible via frequent public transport links.
SERVICES
We are advised that the property has mains gas, water and electricity.
LOCAL AUTHORITY
Leeds City Council
TENURE
We are advised that the property is freehold, and that vacant possession will be granted upon legal completion.
VIEWING ARRANGEMENTS
Strictly through the selling agent Monroe Estate Agents - Viewings by appointments only.