
Planning Reference: 24/02414/FU
Monroe are delighted to present a rare opportunity to acquire a chain-free plot of land on Roundhay Park Lane, with planning permission granted for a stunning four-bedroom detached residence. Extending to approximately 0.6 acres, this exceptional plot is located in a highly sought-after area of North Leeds, combining privacy, peaceful surroundings, and excellent development potential.
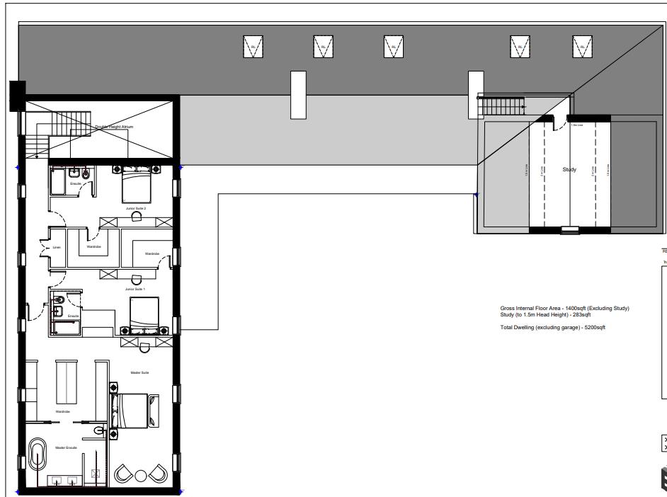
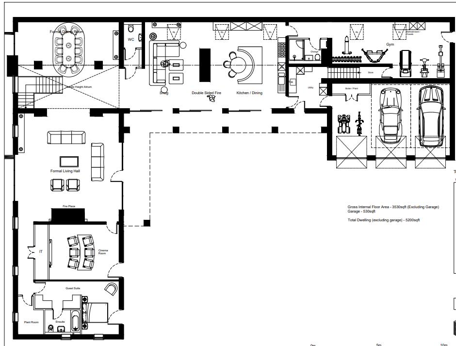
The proposed plans have been designed to accommodate all the necessities of an unreal modern family home. A show-stopper entrance living hall welcomes you into the property, leading to an impressive open-plan kitchen, living, and dining space. There is also a separate formal dining room, a large living room, a guest suite, a fantastic gym space, and an integral triple garage. Upstairs, the property includes three fabulous bedroom suites, while a separate study located off the kitchen provides the perfect space for a home office, teenage retreat, or an additional bedroom if needed.
The plot is level and private, with mature trees at the perimeters providing natural screening. The proposed plans also include electric gates to the front of the plot providing further privacy.
This is a fantastic opportunity for developers or self-builders to create a bespoke, modern family residence in a location that consistently sees strong demand and high resale values.
Location Highlights
Situated in a highly demanded area of North Leeds
Excellent access to local schools, shops, and amenities
Just a short drive from Leeds City Centre and railway station
Surrounded by attractive, well-maintained properties
Quiet, private setting
Services
We are advised that mains water, electricity, drainage, and gas are available.
Local Authority
Leeds City Council
Tenure
We are advised that the property is freehold and that vacant possession will be granted upon legal completion.
Viewing Arrangements
Strictly through the exclusive selling agent, Monroe Land and New Homes.