
Introducing Breary Grange Farm – a rare opportunity to acquire one of just five individually designed luxury homes in this prestigious new development. Perfectly positioned between Bramhope, Eccup, and Alwoodley, this prime development enjoys one of North Leeds' most sought-after locations. Thoughtfully crafted to the highest standards, each home blends timeless rural character with contemporary elegance, offering a lifestyle of space, style, and seclusion in an idyllic setting. Each dwelling also offers a unique layout designed and finished to the highest standard throughout.
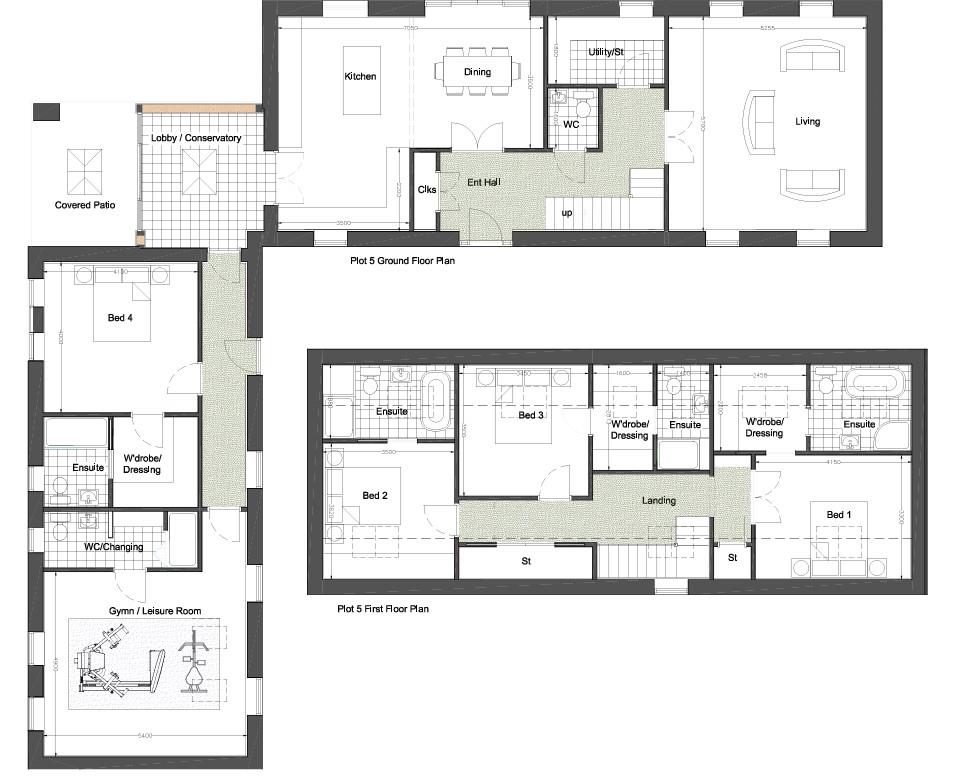
This home showcases the best of open-plan living, as well as an option for a fantastic leisure suite! The ground floor of this home features a spacious, formal living room, and a spacious open-plan kitchen, living, and dining area—perfect for modern family life. There is also a separate utility room. In the Left-wing of the ground floor, accessed via an impressive glass extension, there is a superb opportunity to bespoke this home to your family's needs, subject to early reservation! The proposed floorplan offers a spacious ground floor bedroom, ideal for guests, and a spacious home-gym. However, this could be purposed as a two bedroom annexe or alternatively a leisure wing, comprised of a cinema room and gym if desired.
Upstairs, you’ll find a splendid primary suite, complete with a dressing room and a luxurious fully-tiled en suite with both a bath and walk-in shower. In addition to this, there are two further well-proportioned bedroom suites.
Crafted with meticulous attention to detail, bespoke kitchens will be delivered by Design House Interiors boasts quartz worktops and a full suite of premium appliances. A separate utility room mirrors this quality, while the bathrooms are fully tiled and fitted with contemporary furniture, walk-in showers, underfloor heating, and luxury finishes.
High-spec fixtures include solid internal doors, fitted wardrobes, and elegant mouldings throughout. Sustainability meets style with air source heating, solar PV (subject to negotiation), CAT6 cabling, CCTV, and EV charging.
Externally, each home enjoys landscaped gardens, stone patios, panoramic green-belt views and secure gated access —all within this rare and exclusive five-home development. This particular home occupies an enviable position, benefiting from an expansive plot!
REASONS TO BUY
- Stunning four/five bedroom new home, sympathetically designed to blend in within an exclusive, gated development of barn conversions
- Opportunity to bespoke ground floor floorplan, subject to early reservation
- Offered with a 10 year warranty
- Sought-after location, rich in local amenities
- Large, South-facing garden
- Exceptional layout
- Showcases the best of open-plan living
- Detached garage and carport
- Expansive plot
To find out more, contact Monroe Land and New Homes.
T: 0113 870 4443
E: landandnewhomes@monroeestateagents.com
ENVIRONS
Bramhope is a highly sought-after area located in North Leeds, approximately 7 miles north of the city centre. It's situated on the road between Leeds and the market town of Otley. The village offers stunning countryside scenery and woodlands while still maintaining a pleasant semi-rural atmosphere. It has a range of local shops, a highly regarded primary school, a public house, a medical centre, and a selection of recreational activities, including a health club, Bramhope Tennis Club, and easy access to Golden Acre Park.
Bramhope has a convenient location for travelling to and from, with easy access to Bradford, Harrogate, and York for daily commuting, and the A1/M1/M62 motorway network provides a convenient way to travel to areas further away. Additionally, Leeds/Bradford International Airport is just a ten-minute drive away, making it a great option for those looking to travel by air.
LOCAL AUTHORITY
Leeds City Council
TENURE
We are advised that the property is freehold, and that vacant possession will be granted upon legal completion.
VIEWING ARRANGEMENTS
Strictly through the selling agent-Monroe Estate Agents.