
Currently under construction by Croftstone Construction, this architecturally striking home presents a rare opportunity to secure a property of true distinction, seamlessly blending timeless materials with bold contemporary design. Early purchasers will also have the unique advantage of collaborating with the developer to tailor the specification to their own vision, resulting in a fully bespoke, turn-key home upon completion.
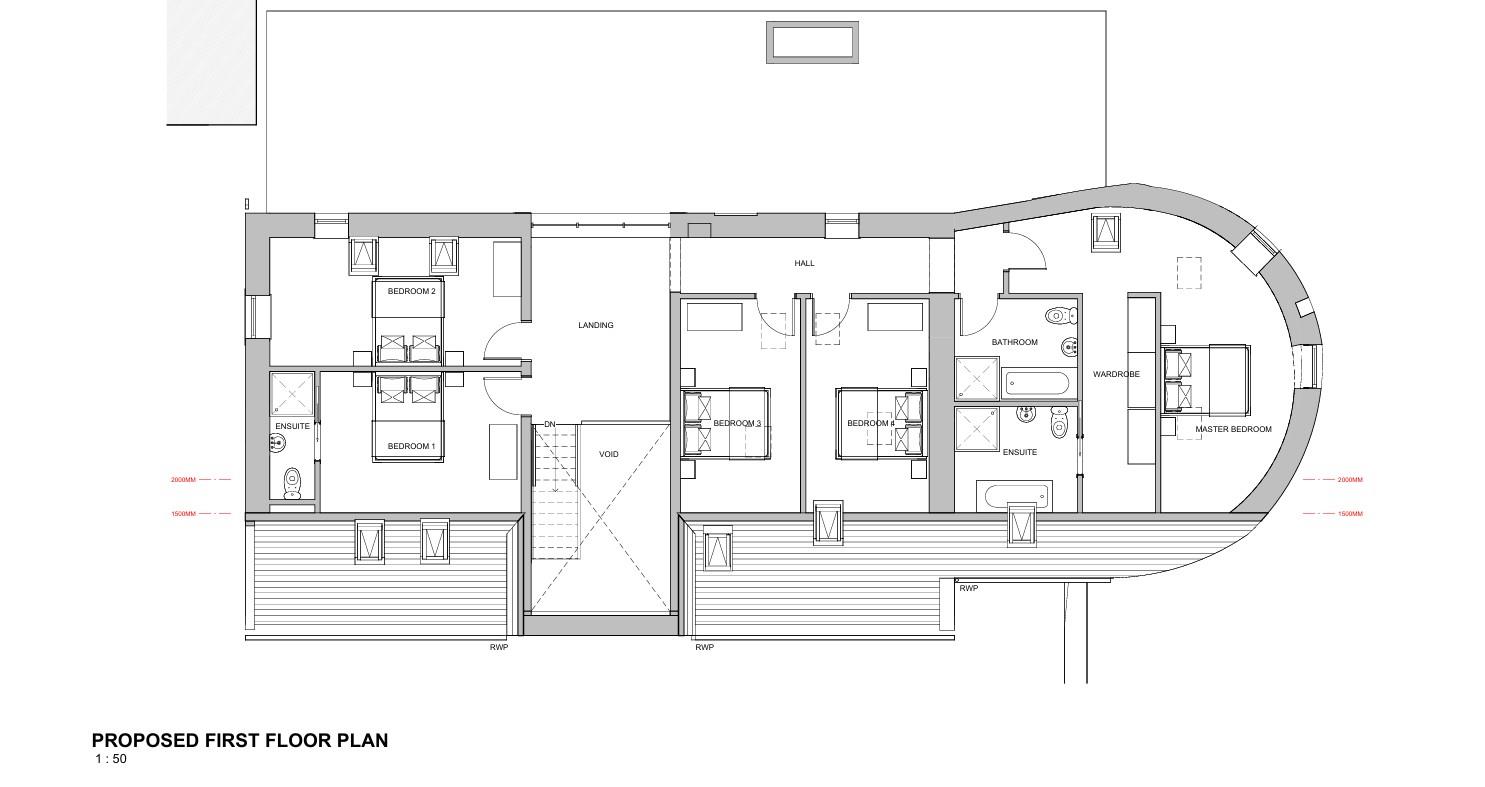
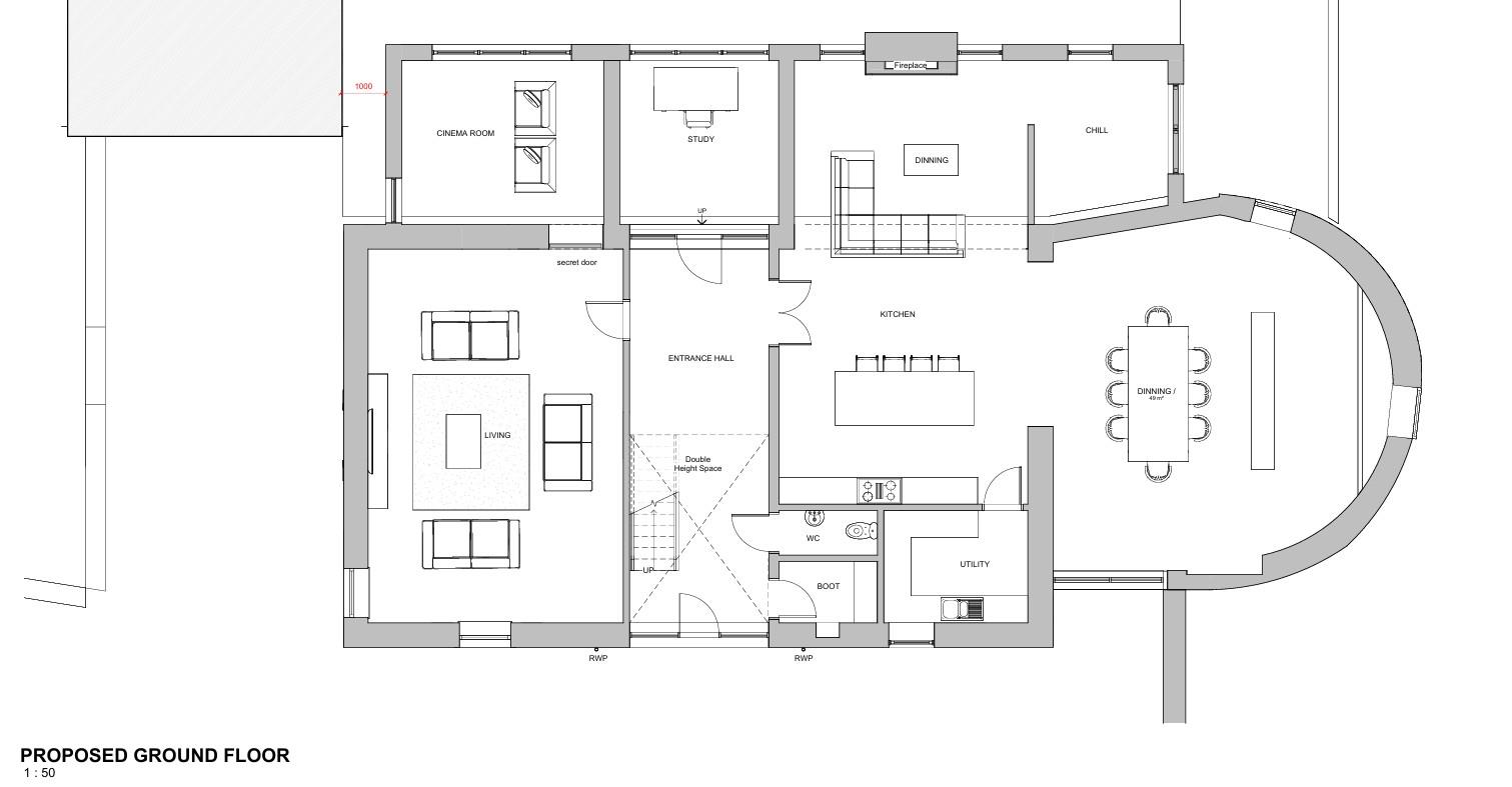
Extending to just under 2 acres, the completed residence will deliver extensive, beautifully curated accommodation, including five generous bedrooms, impressive open-plan living spaces, and dramatic vaulted ceilings. Expanses of glazing have been thoughtfully designed to frame the surrounding countryside, flooding the interior with natural light and creating a seamless connection to the landscape.
A substantial triple garage further enhances both the practicality and presence of this outstanding home.
Applewick has been carefully conceived to blend traditional character with cutting-edge design. Uniquely, the purchaser will have the opportunity to influence the final specification, allowing for a bespoke finish tailored to individual taste and lifestyle.
Enjoying a prime position just outside Harrogate, the property offers the perfect balance of rural tranquillity and convenient access to the town’s renowned amenities, schools, and transport links.
KEY FEATURES
• Individually designed stone barn conversion set within approx. 2 acres
• Grand Designs-inspired architecture blending heritage and contemporary design
• Extensive accommodation extending to circa 5 bedrooms
• Impressive open-plan living spaces with vaulted ceilings
• Expansive glazing maximising natural light and countryside views
• Opportunity to influence final specification and finishes
• High-quality materials and design-led detailing throughout
• Triple garage with substantial driveway and turning space
• Private, semi-rural setting on the outskirts of Harrogate
• A rare opportunity to create a truly bespoke, landmark home
GF (260 m²) 2,799 ft²
FF (132 m²) 1,421 ft²
Garage (50 m²) 538 ft²
Outbuilding (38 m²) 409 ft²
Total (480 m²) 5,167 ft²
To find out more, contact Monroe Land and New Homes.
ENVIRONS
Situated in the highly regarded village of Beckwithshaw, Applewick enjoys a prime position on the rural fringe of Harrogate, offering an exceptional balance of countryside living and everyday convenience.
Beckwithshaw is well known for its charming village atmosphere, scenic surroundings, and access to some of North Yorkshire’s most beautiful landscapes, including the nearby Nidderdale Area of Outstanding Natural Beauty. The area is ideal for walking, cycling, and outdoor pursuits, while still being just a short drive from Harrogate’s extensive amenities.
Harrogate itself offers an excellent selection of independent boutiques, cafés, restaurants, and supermarkets, along with highly regarded schooling options in both the state and private sectors. For commuters, the property provides convenient access to Leeds, York, and beyond via strong road and rail links.
This location perfectly combines peaceful rural living with connectivity to key commercial centres, making it ideally suited for both family life and professional buyers.
SERVICES
We are advised that the property will have mains water and electricity. Drainage and heating systems are to be confirmed as part of the final specification.
LOCAL AUTHORITY
North Yorkshire Council
TENURE
We are advised that the property is freehold and that vacant possession will be granted upon legal completion.
VIEWING ARRANGEMENTS
Strictly through the exclusive selling agent Monroe Estate Agents